Сторінка 1 з 10 12345 ... ОстанняОстання
Показано з 1 по 10 з 95

Тема: Дизайн 3-х комнатной Чешки



Поделиться
  1. #1

    За умовчанням Дизайн 3-х комнатной Чешки

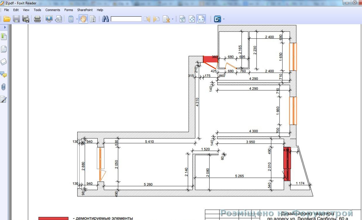
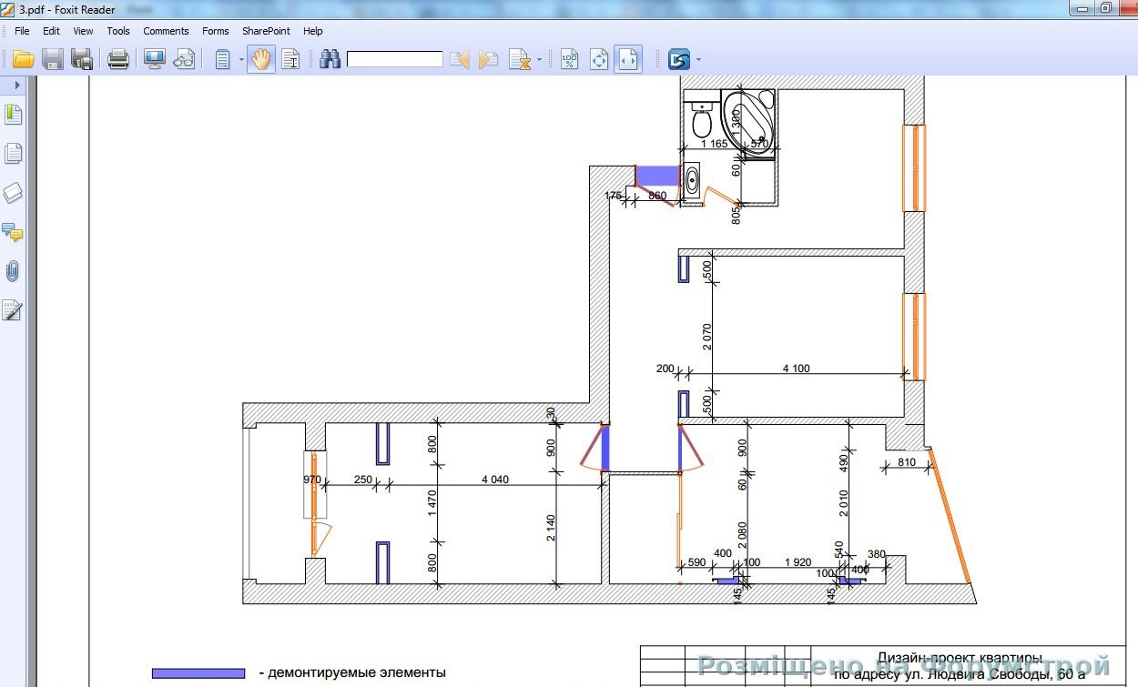
    Как я уже говорил, планирую делать ремонт. Имеется дизайн проект трешки в Чешке. Хочу в этой теме обсудить техническую сторону проект.

    Прошу высказать свое мнение о перепланировке специалистов по следующей докуметации:
    Мініатюри Мініатюри 2.pdf   3.pdf   4.pdf   5 чб.pdf  

  2. # ADS
    Circuit advertisement
    Реєстрація
    Always
    Повідомлень
    Many
     

  3. #2

    За умовчанням Re: Дизайн 3-х комнатной Чешки

    А нельзя ли выложить фото для нормального обозрева.
    Мне скачивать предложенные файлы нет резона.
    Да и другим наверное тоже. :roll:

  4. #3
    Администратор Аватар для Admin
    Реєстрація
    10.02.2012
    Повідомлень
    5,836
    Записів в щоденнику
    2
    Thanks
    502
    Thanked 197 Times in 160 Posts

    За умовчанням Re: Дизайн 3-х комнатной Чешки

    Там расширение pdf. Его не выложишь как фото. Это если ТС захочет, можно скрин сделать и выложить.
    Лучше взять и изобрести завтрашний день, чем переживать о том, что вчерашний был так себе. (С) Стив Джобс

  5. #4

    За умовчанням Re: Дизайн 3-х комнатной Чешки

    Значит будем играть в прятки,
    или угадай что у меня?

  6. #5

    За умовчанням Re: Дизайн 3-х комнатной Чешки

    Выкладываю картинки сюда. Прошу комментариев и критики рабочей части проекта.
    Мініатюри Мініатюри Натисніть на зображення для збільшення. 

	Назва:	2.jpg 
	Переглядів:	1916 
	Розмір:	168.9 Кб 
	ID:	773   Натисніть на зображення для збільшення. 

	Назва:	3.jpg 
	Переглядів:	1915 
	Розмір:	156.5 Кб 
	ID:	774   Натисніть на зображення для збільшення. 

	Назва:	4.jpg 
	Переглядів:	1917 
	Розмір:	273.8 Кб 
	ID:	775   Натисніть на зображення для збільшення. 

	Назва:	5.jpg 
	Переглядів:	1917 
	Розмір:	178.1 Кб 
	ID:	776  

  7. #6

  8. #7

    За умовчанням Re: Дизайн 3-х комнатной Чешки

    Почему? Сейчас многие так делают, комната больше будет. Чем плохо?

  9. #8
    Супер-модератор Аватар для yspih
    Реєстрація
    28.06.2012
    Адреса
    Допкено
    Повідомлень
    3,572
    Thanks
    4
    Thanked 80 Times in 68 Posts

    За умовчанням Re: Дизайн 3-х комнатной Чешки

    у знакомых была такая квартира. сделали отличную перепланировку. лично мне ооочень понравилась
    суть: из кухни сделали спальню, а из гостинной кухню-столовую.

    просто отлично все.

  10. #9
    Супер-модератор Аватар для yspih
    Реєстрація
    28.06.2012
    Адреса
    Допкено
    Повідомлень
    3,572
    Thanks
    4
    Thanked 80 Times in 68 Posts

    За умовчанням Re: Дизайн 3-х комнатной Чешки

    а родители у меня убрали угол, как на рисунке, поставили там двойную дверь. тем самым немного увеличили прихожую. тоже получилось не плохо. но если бы я делал ремонт в трешке чешке, однозначно бы сделал из кухни спальню. а из гостинной кухню-столовую
    Мініатюри Мініатюри Натисніть на зображення для збільшення. 

	Назва:	4.jpg 
	Переглядів:	1911 
	Розмір:	271.9 Кб 
	ID:	777  

  11. #10
    Администратор Аватар для Admin
    Реєстрація
    10.02.2012
    Повідомлень
    5,836
    Записів в щоденнику
    2
    Thanks
    502
    Thanked 197 Times in 160 Posts

    За умовчанням Re: Дизайн 3-х комнатной Чешки

    Цитата Повідомлення від yspih
    суть: из кухни сделали спальню, а из гостинной кухню-столовую.
    Так вроде ж нельзя (мокрые зоны). Я бы себе тоже так бы сделала, но думаю, что в ближайшее время буду продавать квартиру.
    Лучше взять и изобрести завтрашний день, чем переживать о том, что вчерашний был так себе. (С) Стив Джобс

Сторінка 1 з 10 12345 ... ОстанняОстання

Схожі теми

  1. Дизайн 1 комнатной квартиры в чешке
    від yspih в розділі Дизайн, перепланировка
    Відповідей: 266
    Останнє повідомлення: 06.02.2020, 14:18
  2. Дизайн сантехники
    від malinka в розділі Водопровод и канализация
    Відповідей: 30
    Останнє повідомлення: 07.04.2016, 17:05
  3. Дизайн 1 комнатной хрущевки Перепланировка в студию
    від $лимон$ в розділі Дизайн, перепланировка
    Відповідей: 39
    Останнє повідомлення: 22.06.2014, 23:28

Мітки цієї теми

Ваші права

  • Ви не можете створювати нові теми
  • Ви не можете відповідати в темах
  • Ви не можете прикріплювати вкладення
  • Ви не можете редагувати свої повідомлення
  •  

Яндекс.Метрика